Tanques PAMA redondos con celda de dilución para generación de microburbujas 






Tanques PAMA rectangulares con celda de dilución para generación de microburbujas



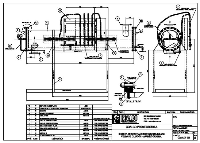
Celda de dilución



Operación de celda de dilución



<< Regresar

 

 

Pedro Benvenuto 458 San Miguel, Lima 32- Perú
Teléfonos / Fax: (51-1) 566-3939 / 566-3949 / 835*2619
E-mail: proyectos@goalco.com.pe